|
|
||||||||
|
projekt | EWELINA IV
|
||||||||
|
|
||||||||
![]() |
||||||||
|
|
||||||||
![]() |
![]() |
|||||||
|
Stonowane linie, harmonijne
proporcje, elegancka
bryła. To wszystko
sprawia, że prezentowana
rezydencja, stylizowana
na wiejską posiadłość,
doskonale odnajdzie się
w każdej przestrzeni.
|
R
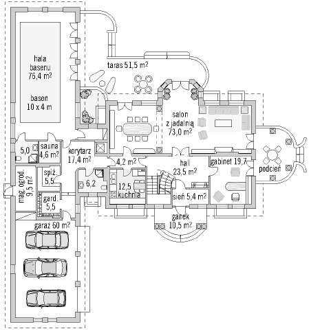
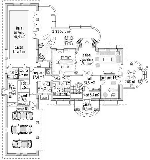
ezydencja „Ewelina IV” to idealny projekt dla tych, którzy cenią ciszę i spokój, ale równocześnie pragną być w centrum wydarzeń. Piętrowy budynek, z okazałym wejściem, nawiązuje stylem do architektury wiejskich willi. Uroku dodają mu duże tarasy na parterze i poddaszu, w tym dolny z obszernym podcieniem. Bryła najlepiej prezentuje się na dużej działce, a poszczególne pomieszczenia zostały rozplanowane w taki sposób, aby w pełni wykorzystać ich funkcjonalność. Obszerne podpiwniczenie pełni funkcję rekreacyjno-gospodarczą. W projekcie uwzględniono również miejsce na przestronny, trzystanowiskowy garaż i windę,
|
ułatwiającą codzienną komunikację. Usytuowany na parterze przestronny salon, zyskał bezpośrednie połączenie z pomieszczeniami do relaksu i basenem. Poddasze bocznego skrzydła można dowolnie zaaranżować.
|
arch. Lech Domaszczyński arch. Grażyna Domaszczyńska
Istniejemy od 1989 r. Oferujemy bogaty wybór gotowych projektów domów jednorodzinnych. Wykonujemy indywidualne projekty od małych domów mieszkalnych po rezydencje, spełniając życzenia i marzenia inwestorów. Projekty opracowujemy kompleksowo, od koncepcji po aranżację wnętrz i sprawujemy autorski nadzór nad realizacją.
|
|||||
|
Projekt: Ewelina IV
Autor: arch. Lech Domaszczyński,
arch. Grażyna Domaszczyńska
Powierzchnie: użytkowa 526,3 m² + garaż 60,0 m²
zabudowy 402 m²
Kubatura: 3125 m³
Wymiary domu: 24,36 x 31,34 m
Minimalne wymiary działki: 36 m x 39,5 m
|
![]() |
|||||||
|
AR EX
Autorska Pracownia Architektoniczna
01-648 Warszawa, ul. Klaudyny 12 lok. 189
tel./fax (022) 833 14 29
tel. kom. 0 601 437 619
e-mail: arex@arex.net.pl, www.arex.net.pl
|
||||||||
|
parter: 268,0 m2 + garaż 60,0 m2
|
poddasze: 110,1 m2 + strych 132,5 m2 piwnica: 148,2 m2
|
|||||||
|
|
||||||||