tmp17C-2.jpg
Marianna
tmpB2A-1.jpg
AREX

AUTORSKA PRACOWNIA
ARCHITEKTONICZNA

01-684 Warszawa
ul. Klaudyny 12, lok. 189
tel,/fax (O 22) 833-14-29
tel. kom. 0601 437-619
e-mail:
arex@arex.net.pl
www.arex.net.pl

autor:
mgr inż. arch. Lech Domaszczyński

zespół projektowy:
mgr inż. arch. Lech Domaszczyński
mgr inż. arch. Grażyna Domaszczyńska

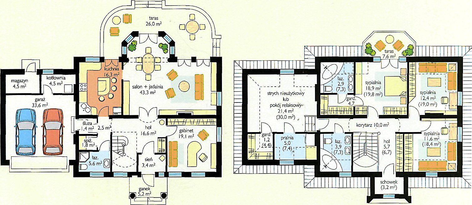
Bardzo przestronny, funkcjonalny i łatwy w realizacji. Budynek zostat zaprojektowany w zwartej bryle, na rzucie prostokąta, z centralnie usytuowanym wejściem w postaci tradycyjnego ganka. Część mieszkalna została umieszczona na poddaszu, parter stanowi przestrzeń ogólnoużytkową. Od strony ogrodu, na poddaszu, zaprojektowano taras nad wykuszem ogrodu zimowego. Istnieje możliwość dowolnego zagospodarowania poddasza wg własnych potrzeb. Jeżeli warunki nasłonecznienia na działce tego wymagają, budynek można zrealizować w wersji lustrzanego odbicia. Istnieje możliwość wykonania dowolnego podpiwniczenia. Wysokość domu - 8,95 m.

Propozycje rozwiązań materiałowych:

- fundamenty: żelbetowe wylewane
- ściany zewnętrzne: warstwowe z cegły kratówki 25,12 cm; styropian 8 cm
- ściany wewnętrzne: konstrukcyjne — cegła pełna kl. 150; działowe — dziurawka 12 cm
- strop: TERIVA I
- elewacje: tynk mineralny, stolarka biała lub palisander
- pokrycie dachu: dachówka ceramiczna, kąt nachylenia 40°
 
   
tmp1FD-1.jpg
powierzchnia użytkowa:
294,50 m2 + garaż 33,60 m2

minimalne wymiary działki:

25,85 x 24,88 m

tmpD6-2.jpg

tmpB2A-2.jpg
parter: 218,20 m2 + garaż 33,60 m2
  poddasze: 76,30 m2 (w nawiasach podano pow. podłogi)