|
|
||||||||
|
projekt | OLIWIA
|
||||||||
|
|
||||||||
|
|
![]() |
|||||||
|
Imponujących rozmiarów
salon zachwyci tych, dla
których rezydencja musi
mieć w sobie aurę luksusu.
Mimo tak efektownych
rozwiązań, rezydencję
„Oliwia” można zbudować
na wąskiej działce.
|
B
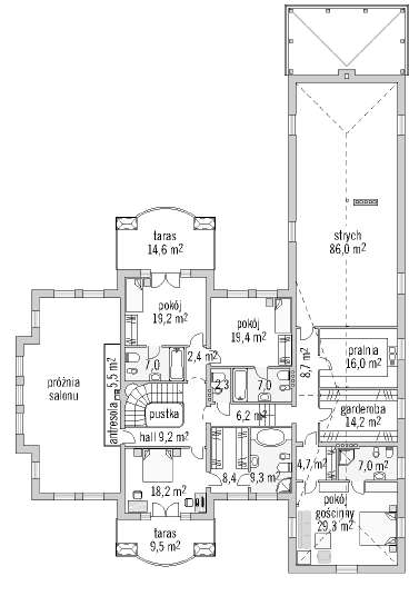
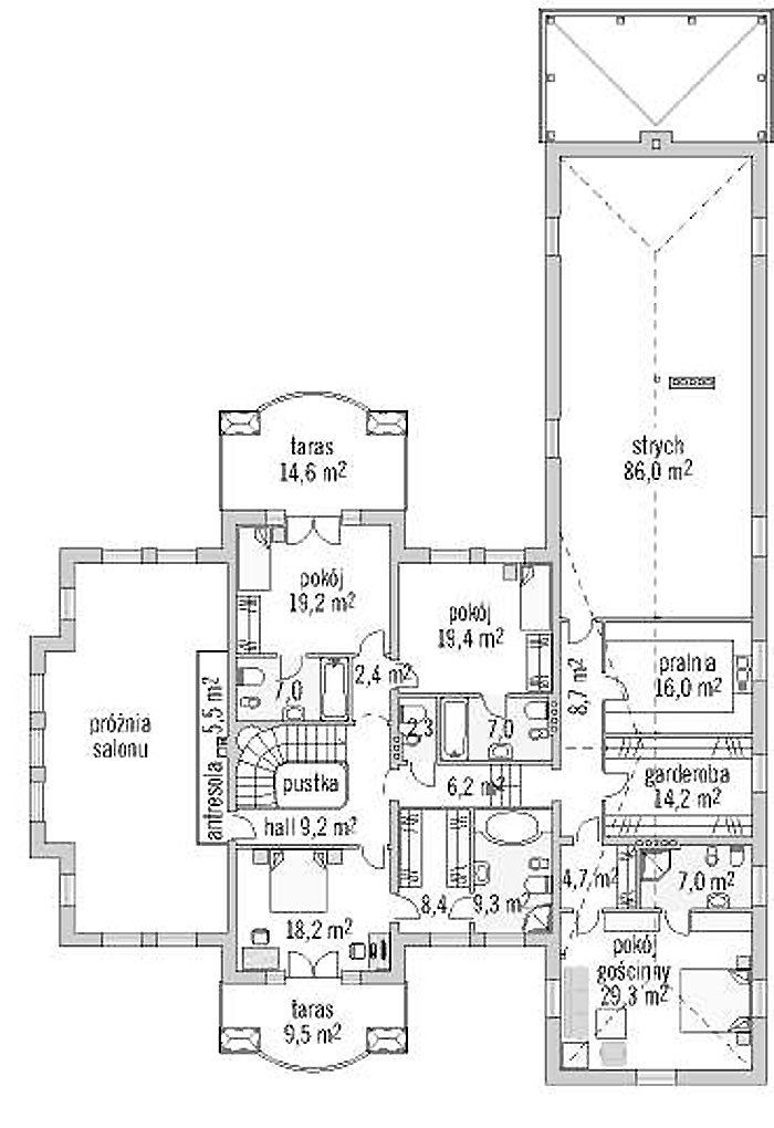
udynek w kształcie litery T składa się z piętrowej części mieszkalnej oraz parterowej części bocznej, uzupełnionej o poddasze użytkowe. Parter w części głównej tworzą przestronne wnętrza, połączone ze sobą szerokimi przejściami, dzięki czemu stanowią one wspólną, harmonijnie zakomponowaną, przestrzeń. Dwukondygnacyjny salon to jednocześnie najbardziej efektowny i charakterystyczny element architektury wewnętrznej „Oliwii”. Piętro rezydencji zostało przewidziane na trzy pokoje z łazienkami. W bocznym skrzydle mieszczą się natomiast sypialnia z łazienką i garderobą dla seniorów oraz część rekreacyjna, do której można wejść zarówno z holu, jak i z tarasu ogrodowego. Ulokowane nad nim poddasze użytkowe zostało
|
wykorzystane na pokój gościnny oraz obszerną pralnię z garderobą.
Bryłę rezydencji urozmaicają trzy tarasy na parterze, w tym jeden z obszernym podcieniem przy jadalni, podcień z grillem za pomieszczeniem rekreacyjnym oraz dwa tarasy na piętrze.
|
||||||
|
arch. Lech Domaszczyński arch. Grażyna Domaszczyńska
Istniejemy od 1989 r. Oferujemy bogaty wybór gotowych projektów domów jednorodzinnych. Wykonujemy indywidualne projekty od małych domów mieszkalnych po rezydencje, spełniając życzenia i marzenia inwestorów. Projekty opracowujemy kompleksowo, od koncepcji po aranżację wnętrz i sprawujemy autorski nadzór nad realizacją.
|
||||||||
|
Projekt: Oliwia
Autorzy projektu: arch. Lech Domaszczyński,
arch. Grażyna Domaszczyńska
Powierzchnia: użytkowa 492,8 + garaż 41,8 m²;
zabudowy 437,7 m²
Kubatura: 3198,6 m³
Minimalne wymiary działki: 31 m x 43 m
|
![]() |
|||||||
|
AR EX
Autorska Pracownia Architektoniczna
01-648 Warszawa, ul. Klaudyny 12 lok. 189
tel./fax (022) 833 14 29
tel. kom. 0 601 437 619
e-mail: arex@arex.net.pl, www.arex.net.pl
|
||||||||
|
|
||||||||